和歌山市中島のビル

980万円

和歌山県和歌山市中島

紀勢本線「宮前」駅徒歩17分

紀勢本線「紀三井寺」駅徒歩30分

和歌山電鐵貴志川線「竈山」駅徒歩31分

価格
980万円
間取り/面積
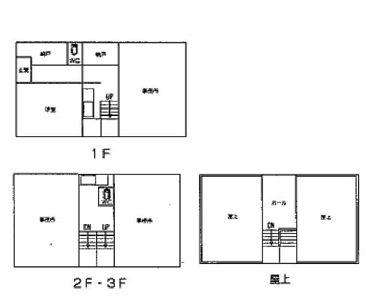
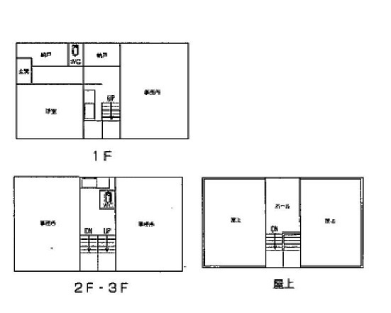
-/191.98㎡
所在地
和歌山県和歌山市中島
築年
1985年3月(築41年)
駐車
-
交通

紀勢本線宮前」駅 徒歩17分

紀勢本線紀三井寺」駅 徒歩30分

和歌山電鐵貴志川線竈山」駅 徒歩31分

和歌山市中島のビルの基本情報

物件名
和歌山市中島のビル
価格
980万円
建物面積
191.98㎡
築年月
1985年3月(築41年)
総戸数
-
所在地
和歌山県和歌山市中島
交通

紀勢本線宮前」駅 徒歩17分

紀勢本線紀三井寺」駅 徒歩30分

和歌山電鐵貴志川線竈山」駅 徒歩31分

和歌山市中島のビルの詳細情報

設備条件
設備(その他)
    -
駐車場/月額
-/-
土地権利
所有権
国土法届出
不要
用途地域
準工業
販売戸数 / 総戸数
- / -
管理形態
-
管理員の勤務形態
-
管理会社
-
取引態様
仲介
引渡し
即時

和歌山市中島のビルで募集中の物件

  1. 58.07坪 (191.98㎡)

    980万円(16.88万円/坪)

周辺施設

  • オークワ本社中島店の画像

    スーパー

    オークワ本社中島店

    734m(10分)

  • ファミリーマート塩屋の画像

    コンビニエンスストア

    ファミリーマート塩屋

    1076m(14分)

  • 宮前小学校の画像

    小学校

    宮前小学校

    1151m(15分)

  • 宮前駅の画像

    宮前駅

    1321m(17分)

  • 東和中学校の画像

    中学校

    東和中学校

    1371m(18分)

  • スーパーセンターオークワセントラルシティ和歌山の画像

    スーパー

    スーパーセンターオークワセントラルシティ和歌山

    1444m(19分)

よく見られている物件

  1. 和歌山市中島

    - (191.98㎡)

    980万円

  2. 和歌山市湊本町1丁目

    LDK (538.52㎡)

    3,800万円

  3. 和歌山市卜半町

    - (880.46㎡)

    4,000万円

  4. 田辺市下屋敷町

    - (1147.63㎡)

    4,180万円

和歌山市中島のビル

お気軽にお問い合わせください

LINEからお問い合わせ 無料お問い合わせ

SKハウジング株式会社

073-494-5517

AM9:00~PM7:00

(休:水曜日)